中环铂樾售楼处-中环铂樾楼盘百科详情24小时热线最新动态-房价-户型-配套产品特色
您当前使用的浏览器版本过低,可能存在安全风险,建议升级浏览器,或者用以下浏览器浏览
中环铂樾售楼处电线√√【营销中心预约☎】可咨询最新房价优惠折扣,楼盘测评,交房时间,交付标准,周边配套,学区配套,一房一价表,认筹时间,户型图,平面图,高层洋房大平层合院别墅,样板间,房型多样,地铁口距离,区域板块!
宝山南大TOD全新项目“中环铂樾”即将入市,备受市场关注。根据最新消息,该项目将推出246套房源,户型面积在110-139㎡之间,涵盖3-4房的设计,适合不同家庭的居住需求。预计在本月底,售楼处和样板房将正式对外开放,购房者可以提前了解项目的详细信息。


中环铂樾项目由中建七局和中建港航联合开发,位于宝山区W12-1301单元的99-01、100-01地块。该地块的总成交价为12.52亿元,折合楼板价为18977元/㎡。项目周边交通便利,距离15号线米,步行可达,极大地方便了居民的日常出行。根据规划,该地块将建设4幢14-17层的住宅楼,包含一栋14层的保障房以及丰富的社区配套设施,项目总户数规划为272户,其中包含5%的保障房。

中环铂樾的建筑设计采用了现代化的公建化鎏金幕墙,结合T型悬挑体系和流体曲面算法,打造出独特的建筑外观。项目内部将设有多功能的社区空间,满足居民的社交、健身、休闲等多种需求。社区内规划了四大主题架空层,分别为社交会友、健身乐活、童玩天地和康体颐养,旨在为不同年龄段的居民提供丰富的生活体验。

此外,南大智慧城作为上海重点发展的区域,享受多项政策支持,未来将建设多所学校、医疗机构和公园绿地,公共绿化面积高达43%。这一系列的配套设施将为居民提供更为便利的生活环境,提升生活质量。周边商业配套也在不断完善,山姆超市、华润万象汇等购物中心为居民的日常消费提供了更多选择。
随着南大智慧城的快速发展,该区域的房地产市场潜力巨大。根据上海市政府的规划,南大板块将成为科创中心的核心承载区,吸引了大量人才和企业的入驻。未来,随着基础设施的不断完善和配套设施的逐步到位,南大智慧城的居住环境将愈加成熟,房产的购房价值也将不断提升。
关于中环铂樾的户型和精装,我们可以用“比肩豪宅、越级改善”八个字来形容:
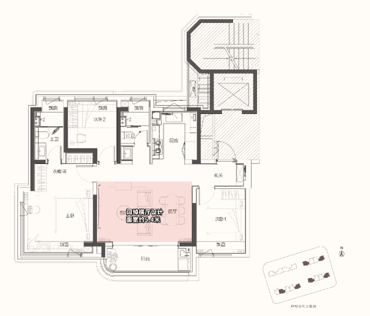
建面约110㎡横厅户型,整体南向面宽做到了约12.3米,超大南向面宽,带来超大空间体验和充足通风采光。

整体户型上采用飞机户型布局,独立玄关入户,全屋没有多余拐角和过道空间,避免了空间浪费。
横厅面宽来到了约5.4米,直连IMAX级巨幕阳台,享受270°景观视野,室内通风采光上佳。

更为难得的是,该户型标配了全屋飘窗,主卧更是拥有270°转角飘窗,拓宽室内景观视野的同时,增加了实际空间使用率,未来作为茶席、瑜伽台、阅读角等,随心所欲,增加更多生活场景。

即便是中间套,也同样做到了南北通透,三开间朝南,洄游动线,布局合理,无论是空间尺度还是通风采光,都不弱于边套!


独立电梯厅入户,开阔的电梯厅,如果未来可以独立使用,可作为自家前厅使用,形成内外“双玄关”,想象一下,这样的全明电梯厅,就算是在这里吃火锅、打麻将,也足够了!
餐客厅空间尺度进一步扩大,整体南向开间面宽高达约14.5米,打造餐客一体大横厅,即便未来想在客厅跳操、玩体感游戏、轰趴玩桌游等,空间也完全足够!

首先,从入户门开始,你就能感受到这个项目的与众不同:精雕铝装甲门+耶鲁五合一智能门锁,妥妥的内环一线豪宅的标准。
走进室内,大金空调、大金地暖、百朗新风、华为全屋智能系统,光是这四大件已经比肩市中心众多豪宅配置,特别是华为全屋智能系统,目前整个上海有此配置的新盘屈指可数!
空调系列,与住建部好房子同等品牌,秉承“安全、舒适、绿色、智慧”四大核心。这个系列大家可以去京东上搜索一下,在价格上绝对是豪宅标准。而关于功能,我们稍微展开一下:
③508L大容量的冰箱纯平嵌入,与橱柜深度尺寸一致,使用更便捷、也更美观;
④加载五金升级、调味拉篮、锅具拉篮,800碗碟三层拉篮,餐厅零食拉篮柜等;容量节省了约250L,相当于5.7个20寸登机箱,极致的收纳。⑤大手笔的在厨房设计了制冷空调,相比只能吹风的凉霸而言,这样的设计更美观也更舒适。
这真的是能保证业主未来数十年全部生活所需的配置,这才是真正的豪宅级享受。也正因如此,这个厨房才会在样板间开放首日吸引如此多购房者的关注,这绝对是当下精装的典范:

除此之外项目还配备了博世冰箱;杜拉维特的卫生间面盆;汉斯格雅的卫生间龙头、五金;铂浪高的厨房龙头、水槽;AO史密斯燃气热水器、杜拉维特智能马桶等国际一线大牌,IM电竞官网这个标准放到南大甚至是整个中环沿线,真的很难遇到对手。但最让我心动的,还是一些细节上的匠心,例如:
整个公共区域都是瓷砖通铺。采用简一密拼瓷砖,餐客厅、厨房通铺,尺寸达到每块900*1800mm,大规格地砖通铺能够使客餐厅和厨房在视觉上形成一个整体,空间显得更加开阔。
全套橱柜都是交付标准,并且全面采用定制橱柜,同时表面还使用了PET材料镀膜!

中环铂樾的推出,正是这一趋势的体现。作为新盘项目,其优越的地理位置、丰富的社区配套以及现代化的建筑设计,都为购房者提供了良好的选择。预计在售楼处开放后,项目将吸引大量购房者前来咨询和选购,市场反响值得期待。中环铂樾项目的入市,将为宝山南大TOD区域带来新的活力与机遇,成为购房者关注的焦点。随着售楼处的开放,更多的购房信息将陆续公布,期待这一项目能够为居民带来更高品质的生活体验。
➨

